
GRÜNPLANER.
Gemeinsam machen wir aus Ihren Ideen, Wünschen und Ansprüche, sowie unserer Erfahrung und Kompetenz den perfekten Traumgarten.
Maßgeschneiderte Gartenarchitektur
Wir beraten Sie professionell
Wir gestalten Gärten aus Leidenschaft. Unsere Landschaftsarchitekten und Gartenplaner planen Gärten mit Sinn für Ästhetik und Gestaltung aber auch der nötigen Wertschätzung ökologischer Prinzipien. So entsteht aus Ihren Wünschen und Träumen ein schöner, ja vielleicht sogar außergewöhnlicher Garten.
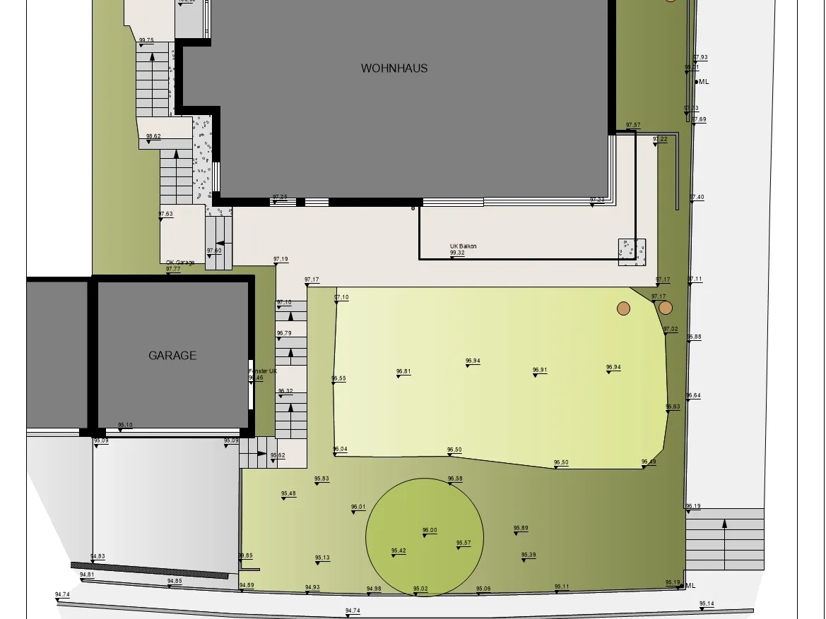
Die Grundlage
Am Anfang des Planungsprozesses steht die Ermittlung der Grundlagen. Deshalb hören wir erst einmal zu, beraten, filtern und sortieren Ihre Wünsche und Bedürfnisse, wägen technische Voraussetzungen ab. Wir erfassen die örtlichen Gegebenheiten, vermessen die topographisch wichtigen Punkte, ermitteln Flächen und Höhen und erstellen einen Bestandsplan als weitere Planungsgrundlage.
Entwurfsplanung
Unsere Entwurfsplanung konkretisiert die Gestaltungsideen für Ihren Garten. Dabei verschmelzen die einzelnen Elemente zu einem Ganzen. Räumliche Gliederung, nachvollziehbare Ordnung und deutliche Hierarchien, durchdachte Funktionen, harmonische Proportionen, abgestimmte Farben und wohlgesetzte Akzente, geplante Kontraste, ausgewählte Materialien und eine schlüssige Pflanzgestaltung sind Aspekte die hierbei grundlegende Betrachtung finden.
Mit der Darstellung unserer Entwürfe können Sie bereits vorab Ihren Garten visuell erleben.




















